Heavy-Ld Serisi Ağır Tonaj Park Ayakları
Heavy-LD park ayakları yüksek statik yük kapasitesi ihtiyaç olduğu durumlarda kullanılır
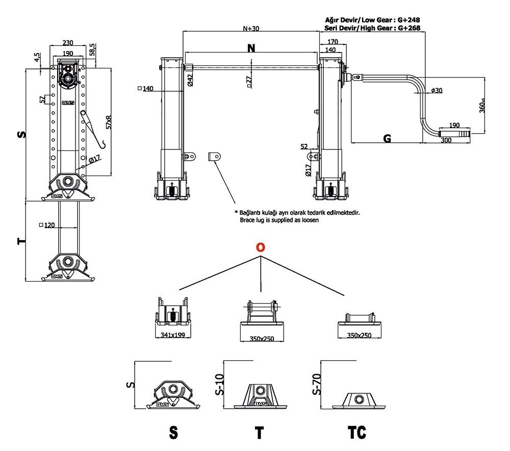
Güçlendirilmiş iç kovan, dış kovan, destek kuşağı ve plakası sayesinde maximum darbe ve yanal yük dayanımı sağlar
Park ayağını zorlu koşullarda çalışmasını sağlayan, sızdırmaz contalara sahip, darbeye dayanıklı şanzıman
Ağır devir ve seri devir arasında kolay geçiş
Montaj çeşitliğine imkan sağlayan tam boy dayanıklı bağlama plakası
Yüksek basınç dayanımına uygun seçilen yağ sayesinde 2 yıl yağlamamam garantisi
Korozyona ve taş çarpmalarına karşı yüksek dayanım sağlayan özel toz boya
Montajı kolay ve kendi aralarında değişitirilebilen pabuç çeşitleri
Kullanım Alanları
Ağır iş makinası taşıyıcı lovbetler
Askeri araç taşıyıcı lovbetler
Portatif iş makinalari
