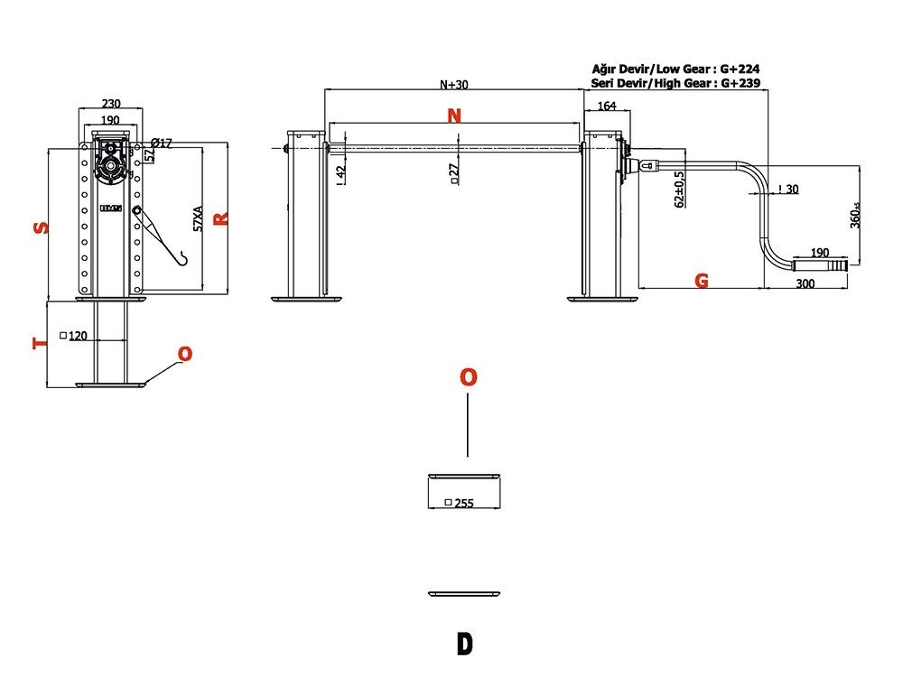
Mjs+Lp Majestik Plus Serisi Park Ayakları
MJS+LP özellikle forkliftle yüklemelerde dorseyi arkadan desteklemenin gerekli olduğu durumlarda kullanılır
Zeminden daha fazla yükseklik imkanı veren sabit düz pabuç
Daha fazla kurs boylu kompakt dizayn
Park ayağını zorlu koşullarda çalışmasını sağlayan, sızdırmaz contalara sahip, darbeye dayanıklı şanzıman
Ağır devir ve seri devir arasında kolay geçiş
Dövme dişli parçaları sayesinde daha uzun ömür
Montaj çeşitliğine imkan sağlayan tam boy dayanıklı bağlama plakası
Yüksek basınç dayanımına uygun seçilen yağ sayesinde 2 yıl yağlamamam garantisi
Korozyona ve taş çarpmalarına karşı yüksek dayanım sağlayan özel toz boya
Kullanım Yerleri
Tenteli treyler
Hafif tonaj lovbetler
Doli dorseler
Yarı römorklar
